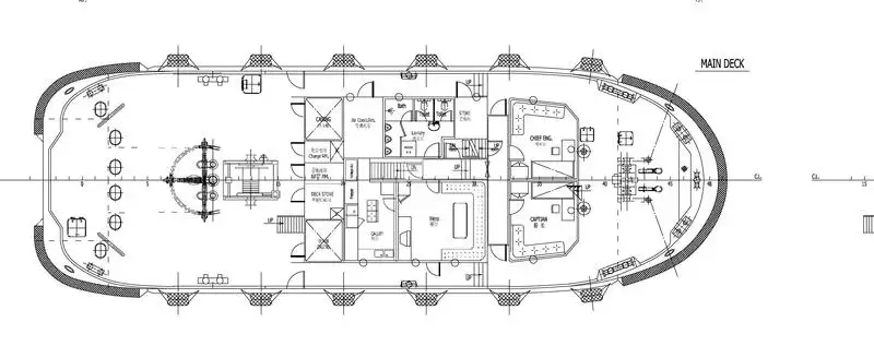
| 31m Çekme Botu | |
| gemi kimliği | 9922 |
| Kategori | Römorkör |
| Yapım Yılı | 2025 |
| Fiyat | $1,950,000 |
| Gönderim eklenme tarihi | 2025-10-25 |
| Tarafından eklendi | SeaBoats |
Gemi boyutları
| Genel uzunluk (LOA), m | 31 |
| gemi draftı, m | 3.2 |
ek bilgi
| kendinden tahrikli |
| benzer gemiler | Benzer gemileri göster |
| İstekler | Satınalma istekleri eşleşiyor |
| e-posta | Eposta gönder |




